Highlights
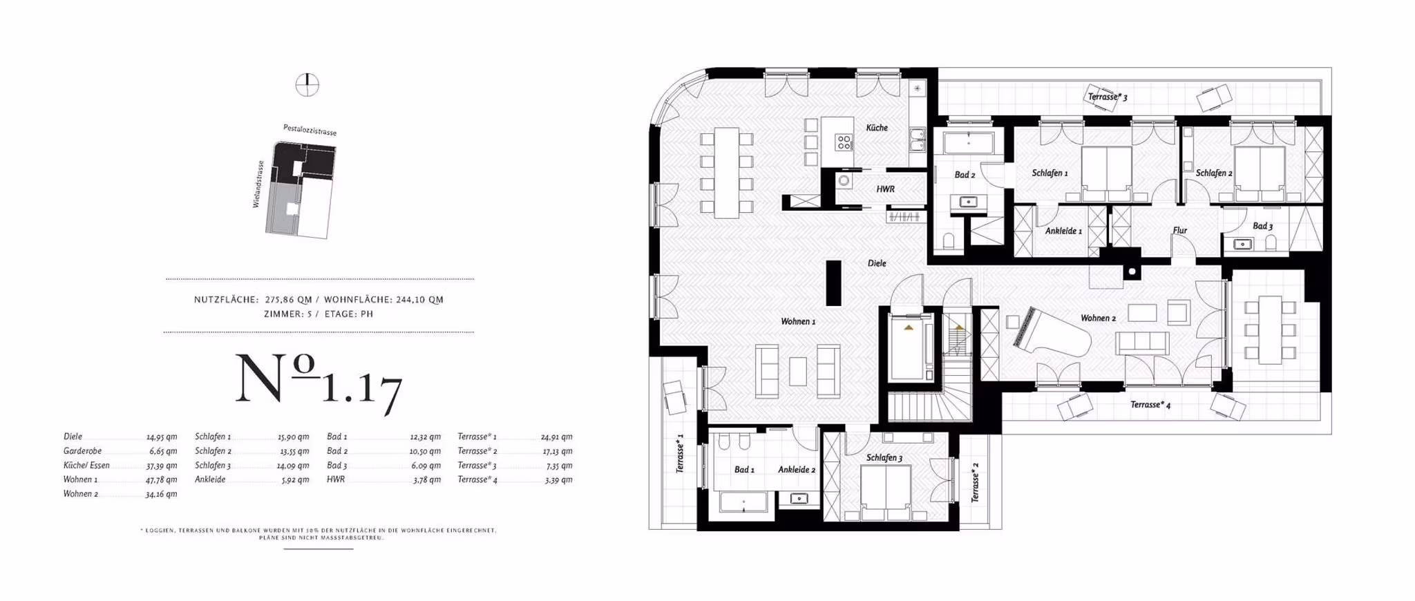
- Neubau Pestalozzistraße 97, Berlin-Charlottenburg
- Penthouse mit ca. 249 m² Wohnfläche
- Vier Terrassen (Nord-, Süd-, Ost- und Westausrichtung)
- Zwei getrennte Wohnbereiche – 1x mit Kaminanschluss
- Offene Küche mit Kochinsel und großem Essbereich
- Hauptschlafzimmer mit Ankleide, En-Suite-Bad und Terrassenzugang
- Zwei weitere Schlafzimmer – nutzbar als Gäste-/Arbeitszimmer
- Drei Bäder – mit Dusche und/oder Badewanne
- Hauswirtschaftsraum mit Waschmaschinenanschluss
- Aufzug mit direktem Zugang in die Wohnung
- Echtholzparkett, Naturstein, Grohe-Armaturen
- Tiefgaragenstellplatz zugeordnet (72.500 €)
- Fußbodenheizung, Fernwärmeversorgung und Keller
