Forster-Immobilien.de Logo
Penthouse mit 3 Terrassen unweit Savignyplatz (2.13) | Berlin-Charlottenburg
Wohnung / 2.13

Penthouse mit 3 Terrassen unweit Savignyplatz (2.13) | Berlin-Charlottenburg

Wielandstraße 50, 10625 Berlin-Charlottenburg
Kaufpreis: 2.870.000 €
provisionsfrei
Etage: 6. OG
4 Zimmer
Wohnfläche: 159,76 m²
3 Terrassen
Aufzug
1 Parkplatz
Gäste-WC
Keller

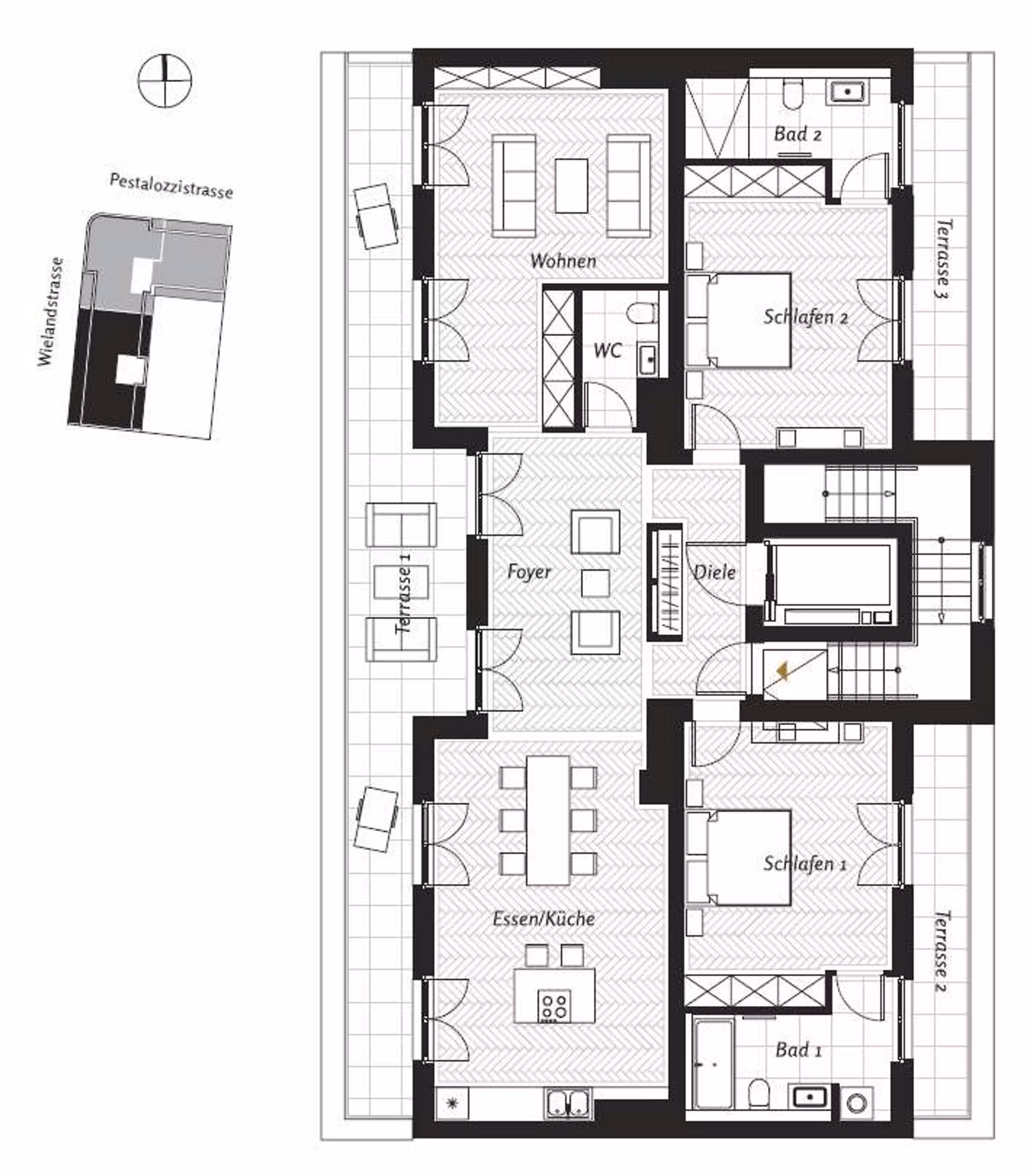
Im obersten Geschoss des stillvollen Neubauensembles WIELAND & PESTALOZZI, in der Wielandstraße 50 in Berlin-Charlottenburg, liegt dieses bezugsfreie Penthouse mit ca. 160 m² Wohnfläche, vier Zimmern und drei Terrassen. Die Wohnung ist über einen Aufzug direkt erreichbar.

Das Entrée mit Diele und großzügigen Foyer bildet das Herzstück der Wohnung und erschließt alle Bereiche des Penthouse. Das Foyer verbindet harmonisch, und im offenen Raumcharakter, den Wohnbereich und den Koch-/Essbereich der Wohnung. Sechs bodentiefe, doppelflüglige Terrassentüren belichten den offenen Bereich von Foyer, Wohn- und Küchen-/Essbereich zur Westseite und führen auf eine großzügige Terrasse mit Ausblick zur Wielandstraße. Die Küche ist mit Küchenzeile und Kochinsel und vorgelagertem großem Essbereich geplant. Ein separates Gäste-WC ist ebenfalls über das Foyer erreichbar.

Zwei abgeschirmte Rückzugsbereiche mit je einem Schlafzimmer und einem eigenen Bad bieten komfortable Privatsphäre. Beide Schlafzimmer orientieren sich zum begrünten Innenhof und verfügen jeweils über eigene, vorgelagerte Terrassen. Die tagesbelichteten Bäder sind als En-Suite ausgeführt – eines mit Badewanne und das andere mit bodengleicher Dusche. Ein praktischer Hauswirtschaftsbereich ist in einem der Bäder integriert. Eines der Schlafzimmer lässt sich optional als Kinder-, Arbeits- oder Gästezimmer nutzen.

Zur Ausstattung zählen Echtholzparkett mit Fries, hohe profilierte Türen, großformatige Fliesen und Natursteinwaschtische. Ein Kaminanschluss ist vorbereitet und ein privates Kellerabteil sowie ein Stellplatz in der Tiefgarage (optional) gehören zur Wohnung. Die gemeinschaftlich nutzbare Gartenanlage im Innenhof und der repräsentative Hauseingang runden das Gesamtbild ab. Die Versorgung erfolgt effizient über Fernwärme.

Highlights

  • Wielandstraße 50 – grüne Wohnstraße
  • Penthouse mit ca. 160 m² Wohnfläche im 6. Obergeschoss
  • Aufzug mit direktem Zugang in die Wohnung
  • Drei Terrassen: eine großzügige Westterrasse, zwei Ostterrassen
  • Großzügiger Wohn-/Essbereich mit offener Küche und Kaminanschluss
  • Zwei Schlafzimmer mit jeweils eigenem En-Suite-Bad
  • Tagesbelichtete Bäder mit Wanne oder bodengleicher Dusche
  • Gäste-WC im Eingangsbereich
  • Echtholzparkett mit Fries, großformatige Fliesen, Natursteinwaschtische
  • Begrünter Hofbereich für Bewohner
  • Tiefgaragenstellplatz zugeordnet (72.500 €)
  • Privates Kellerabteil, Fernwärmeversorgung

Angebot

Angebots ID
WP-2.13
Kategorie
Wohnung – Kauf
Immobilientyp
Penthouse
Wohnung Nr.
2.13
Verfügbar ab
sofort
Verkaufsstatus
Verfügbar

Details

Etage
6. OG
Zimmer
4
Wohnfläche
159,76 m²
Nutzfläche
181,87 m²
Kaufpreis
2.870.000 €

Ausstattung

Anzahl Parkplätze
1
Parkplatz - Typ
Tiefgarage
Parkplatz - Preis
72.500 €
Anzahl Schlafzimmer
2
Anzahl Badezimmer
2
Anzahl Terrassen
3
Personenaufzug
Ja
Gäste-WC
Ja
Keller
Ja
Baujahr
2023
Zustand
Erstbezug

Energie

Energieausweistyp
Bedarfsausweis
Energieeffizienzklasse
C
Endenergiebedarf
77,4 kWh/(m²a)
Wesentlicher Energieträger
Fernwärme

Fotos

Wieland & Pestalozzi – Berlin-Charlottenburg – Illustration Hausansicht
Wieland & Pestalozzi – Berlin-Charlottenburg – Detail Hausansicht
Wieland & Pestalozzi – Berlin-Charlottenburg – Entrée
Wieland & Pestalozzi – Berlin-Charlottenburg – Hofbereich

Lage

Wielandstraße 50, 10625 Berlin-Charlottenburg – das Penthouse 2.13 ist Teil des stilvollen Neubauensembles WIELAND & PESTALOZZI, gelegen nahe dem Savignyplatz. Der Standort verbindet ruhige Wohnlage mit städtischer Infrastruktur. Kurfürstendamm, Kantstraße, Zoologischer Garten und TU Berlin sind fußläufig erreichbar. Eine Adresse in der City West mit klarer architektonischer Haltung und hoher Alltagstauglichkeit.

Externer Inhalt - Mapbox
Aufgrund Ihrer Cookie Einstellungen wird das Kartenmaterial von Mapbox nicht geladen.
Dadurch können personenbezogene Daten an den Dienst Mapbox übermittelt werden. Mehr Informationen finden Sie in unseren Datenschutzbestimmungen.

Dokumente

FAQ

Ja. Das Penthouse ist fertiggestellt und sofort bezugsfrei.

Drei Terrassen – eine große Westterrasse mit Zugang vom Wohnbereich, Ess-/Küchenbereich und vom Foyer. Zwei kleinere private Terrassen mit Ostausrichtung an den Schlafzimmern.

Zentraler offener Wohnbereich mit Foyer, Wohn-, Küchen und Essbereich. Zwei separate Rückzugsbereiche mit Schlafzimmer, En-Suite-Bad und Terrasse.

Das Penthouse eignet sich für Paare oder Einzelpersonen mit hohem Anspruch an Raumqualität, Rückzug und Offenheit – auch als repräsentativer Zweitwohnsitz.

Ja. Die Wohnung ist direkt per Aufzug erschlossen.

Echtholzparkett, hohe profilierte Türen, Natursteinwaschtische, bodentiefe Fenster, Grohe-Armaturen, Fußbodenheizung, Kaminanschluss.

Ja. Ein Tiefgaragenstellplatz ist der Wohnung für 72.500 € zugeordnet.

Kontakt

Oliver Forster Immobilien GmbH
Feuerbachstr. 16, 12163 Berlin
Beratung & Verkauf

Interessiere an Wohnung 2.13 im Wieland & Pestalozzi?

Unser Serviceteam berät Sie gerne – zur Wohnung Nr. 2.13, zur Ausstattung, zur Kaufabwicklung und zu allen Fragen rund um den Verkauf dieser Wohnung.
Fordern Sie unverbindlich weitere Informationen an oder buchen Sie direkt einen Beratungs- bzw. Besichtigungstermin.

Termin buchen