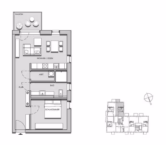
Moderne Eigentumswohnung mit 2 Zimmern und Balkon in begehrter Lage
Das Neubauprojekt AM FALKENBERG im grünen Berliner Bezirk Treptow-Köpenick verbindet modernen Wohnkomfort mit naturnaher Lebensqualität. Das Ensemble besteht aus einem Mehrfamilienhaus mit 33 hochwertigen Eigentumswohnungen und vier Reihenhäusern. Die Wohnungen mit Wohnflächen von 47 bis 93 m² sind optimal für Singles, Paare und kleine Familien konzipiert. Großzügige Fensterflächen, Echtholzparkett und elegante Bäder unterstreichen den hohen Wohnkomfort; Balkone und Terrassen erweitern den Wohnraum ins Freie. Mit rund 131 m² Wohnfläche auf drei Etagen bieten die Reihenhäuser ein durchdachtes Konzept für Familien. Lichtdurchflutete Räume, großzügige Terrassen und Balkone sowie private Gärten schaffen eine Atmosphäre, die zum Wohlfühlen und Entspannen einlädt. Die ruhige, grüne Umgebung sowie die hervorragende Anbindung an die Berliner Innenstadt machen AM FALKENBERG besonders attraktiv für alle, die städtische Infrastruktur und naturnahes Wohnen gleichermaßen schätzen.
Kapitalanleger profitieren bei AM FALKENBERG von Steuervorteilen durch die neue degressive Abschreibung (AfA) sowie von einer einjährigen Erstvermietungsgarantie auf die angegebene, erwartete Nettokaltmiete. Die hochwertige Ausstattung und die Lage in einem wachsenden Marktumfeld bieten gute Voraussetzungen für eine stabile Vermietung und langfristiges Wertsteigerungspotenzial.
Angebot
Details
Ausstattung
Energie

Lage
AM FALKENBERG liegt im begehrten Berliner Stadtteil Altglienicke, einem Teil von Treptow-Köpenick, der für seine grüne Umgebung und hohe Lebensqualität geschätzt wird. Der Bezirk ist bekannt für seine ausgedehnten Waldflächen und die Nähe zu Gewässern, die vielfältigen Freizeitmöglichkeiten bieten – vom Wandern und Radfahren bis hin zu Wassersport auf der Dahme und dem Großen Müggelsee. Die Wohnlage verbindet städtische Infrastruktur mit naturnaher Erholung und schafft eine ideale Balance zwischen Alltag und Freizeit. Alle wichtigen Einrichtungen des täglichen Bedarfs wie Supermärkte, Schulen, Kitas und medizinische Versorgung sind in der Nähe und schnell erreichbar. Die ausgezeichnete Verkehrsanbindung – sowohl durch die nahe Autobahn als auch die öffentlichen Verkehrsmittel – ermöglicht kurze Wege zu den großen Arbeitgebern der Region, darunter der Technologiepark Adlershof und der Flughafen BER, sowie eine schnelle Verbindung ins Berliner Zentrum.
Dokumente
Kontakt
Interessiere an Wohnung 21 im Am Falkenberg?
Unser Serviceteam berät Sie gerne – zur Wohnung Nr. 21, zur Ausstattung, zur Kaufabwicklung und zu allen Fragen rund um den Verkauf dieser Wohnung.
Fordern Sie unverbindlich weitere Informationen an oder buchen Sie direkt einen Beratungs- bzw. Besichtigungstermin.